︎
Accueil
Nos actualités
Réhabilitation
Appartement familial
Rénovation thermique
Réaménagement intérieur
Appartement studio
Maison à Rezé
Maison au Grand Clos
Bureaux en duplex
Cuisine Kervégan
Toiles suspendues
Maison du canal
Parties commune
Fenêtres, lucarnes et façades
Ravalement de façade
Extensions
Extension sur pilotis
Maison du menuisier
Maison à Bouguenais
Surélévation
Restauration
Façade en tuffeau
Copropriétés à Nantes
Cage d’escalier
Diagnostic d’immeuble
Façades en pierre
Façades sur cour
Concours d’idée
CAUE Calvados - 2018
Terre de Hêtre - 2017
AC-CA - 2014
Design
Scénographie
Banc escamotable
Portes intérieures
Porte extérieure
Van aménagé
Fauteuil en palettes
Modélisme
Projets de diplôme
Paimboeuf
Bati Art
Littérature
Mémoire HMONP
Coloc et biotope
EPP en question
CONTACT
Isolation complète d’un appartement
Existant / projet de la cuisine
Existant / projet de la chambre
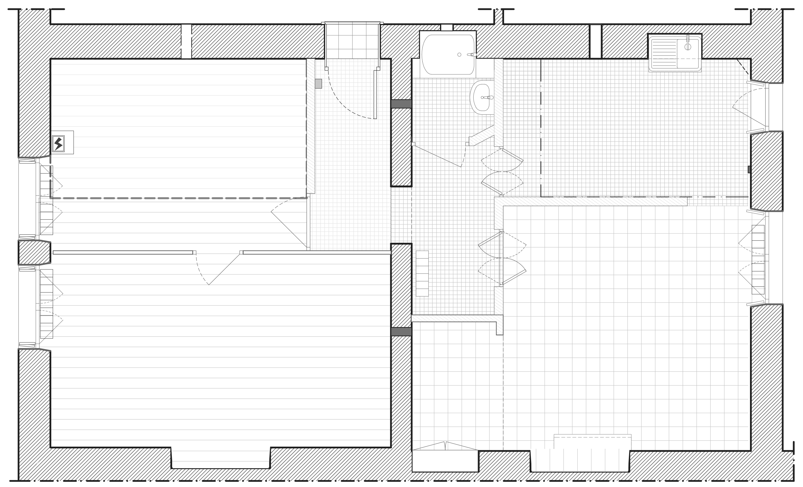
Plan existant
Plan Projet
Pukeko Architecture 2025